科研动态
News
八月聚焦@南大中环铂樾官方售楼处发布:中环铂樾尊奢宅邸来袭!
K8凯发官网平台入口K8凯发官网平台入口更核心:南大正核心位置,坐拥2大TOD综合体,约250米地标及多个百米地标建筑云集!

更精工:华为全屋智能+厨房两大集成中心+超级收纳系统+奢定装标,越级的高阶人居体验!
更享受:优秀的户型设计,全屋飘窗+IMAX巨幕“曲面屏”阳台+270°瞰景飘窗,超多赠送面积!
五一节假日样板间一经开放,人气暴涨!开放至今短短数日,一跃成为南大乃至中环人流量最高的楼盘!
作为中建“好房子”首批试点项目,中环铂樾可以说把所有能及的好东西全都给用上了!
特别是装标方面,项目将最新的顶尖科技运用到厨房、客厅、卧室乃至整个居住空间,为业主带来前所未有的科技居住体验!中环铂樾售楼处电话:
与常见的楼盘厨房装标不同,中环铂樾整体采用了方太最新款的高端“黑科技”产品高端制冷空调系列,而非进口品牌的低端机型!
并且是方太同“高铁复兴号”、“国产大飞机”一同入选中国科创新名片的产品,功能相当了得!
聚集了“集成烹饪中心”、“集成净洗中心”两大全厨房高端方案,实现从烹饪、排烟、洗净全流程一体化!中环铂樾售楼处电话:
这里最牛的地方在于,ta将空调、油烟机、灶具、蒸烤一体机这几大产品形成一个整体系统,智能数据共享,于是就有了三大创新功能亮点!
打开燃气的同时油烟机自动启动,避免了炒菜忘开油烟机,导致油烟逃逸的情况!
超薄近吸科技,油烟机的进风口距台面非常近,高度仅45cm,处于黄金控烟区下沿,油烟刚产生就能迅速被捕捉!

顶部的隔烟屏尺度达90cm,搭配超大容积拢烟腔,可以有效覆盖灶具上空,两侧挡板可防止爆炒时油烟外逃!中环铂樾售楼处电话:
同时,反向背吸设计,排气位置处于油烟机正下方,使油烟直吸直排不拐弯,快速排出室外!
这一整套的设计流程,最大程度地保证让油烟刚排出,就立马被抽出室外,没有一点儿残留,即便是做饭高峰期,厨房也依旧干净清爽!
目前市面上楼盘即便千万豪宅的厨房最多配置的也就是凉霸,厨房自带空调的极少有!
特别是现在夏天来了,厨房做一会儿饭,全身都是汗,有了厨房空调可要比凉霸好太多!
空调具备制冷、除湿、送风三大功能,无论在洗菜还是做饭的过程中,都能感到清凉、干净、舒适的风!
不仅使体感温度好,并且能与抽油烟机的功能形成外循环气流,保证油烟不外漏!中环铂樾售楼处电话:
此外,这种设计不破坏吊顶空间,不用担心后续清洁问题,还有方太售后免费服务,贴心满满!

采用嵌入式一体蒸、烤、烘、炸功能四合一,满足大部分的烹饪需求,减少台面小家电(如空气炸锅)的占用空间!
蒸烤箱拥有60升大容量,比传统42升的蒸烤一体机空间更大,一次可制作更多食物,满足大家庭用餐需求!
ta的操作系统是直接通过灶台的台面操作,不用弯腰,还可以远程手机控制,操作更便捷!中环铂樾售楼处电话:
烹饪前开火,烟机自动启动;烹饪结束关闭灶具,烟机自动关闭,无需手动操作!
同时拥有烟灶联动、蒸烤联动功能,通过后置排气,避免蒸汽烫伤和厨房余味漫溢!
还配备智能菜谱,碰一碰就能跳出120道智能菜谱。具备多种蒸烤模式,能实现蒸烤同烹,比如龙虾蒸烤同烹、鳕鱼蒸烤同烹等多种组合,无论是厨房小白还是烹饪高手,都能轻松做出中西美味!

水槽洗碗机一体化!水槽下方不再浪费,而是安装16套大容量洗碗机,节省0.36平方收纳空间!中环铂樾售楼处电话:
一方面,解决了水槽下柜空间的利用问题和嵌洗操作动线问题,实现空间的高效利用!

另一方面,水槽洗碗机本身也极具亮点。搭载全净透空化技术,通过升级的“气泡洗技术”,比传统的“水洗技术”冲刷力度高2倍左右!中环铂樾售楼处电话:
这种高科技技术还有个霸气的名字,叫“军工微爆破”技术(参考清洗军舰底部藤壶),通过气泡瞬冲到食物残渣表面爆破炸开,能轻松去除中式厨房的重油顽渍。可一次性洗净16余套大件餐具!
阀泵一体专利:洗碗机底部配有强排泵+止逆阀的组合,保证碗内细小残渣可以被洗碗机排出,同时没有余水回流,没有异味产生!

轻轻拍两下柜体,洗碗机就会自动打开,仔细看柜体下方地板上有投射亮灯的地方,其实是洗碗机工作时清洗时间的显示,方便业主使用时了解清洗进度,非常人性化的设计!中环铂樾售楼处电话:

两大集成中心都是采用了目前最前沿的高科技产品,且都是最高端配置,搜一下方太官网商城,果然价格不一般,光是价格就在5万多一套,这还没算上整个厨房的其它厨房配置,不得不说,开发商是真舍得砸钱!物有所值,非常实用!中环铂樾售楼处电话:
上海中环铂樾24小时vip热线☎:(预约快线、华为全屋智能系统!遥遥领先的高科技住宅!

由于价格昂贵,目前上海市面上运用的楼盘屈指可数。这一次,中环铂樾把ta运用到了整个居住空间!
搭配华为独立的鸿蒙的系统,可语音控制全屋灯光、空调、地暖、窗帘等多项功能,实现不同品牌的互联互通!

此外,鸿蒙系统是国家战略,大部分国产家电品牌(超3000家品牌接入)都支持鸿蒙系统的接入,后期入住后,业主可以根据自己需要定制属于自己的全屋场景!3、超级收纳系统!延展百变奢宅的空间美学!
收纳方面,同样几乎做到了极致!玄关、厨房、卫生间、卧室、阳台、餐厅等每个地方的空间,都做了收纳设计!中环铂樾售楼处电话:
玄关收纳:定制橱柜,全部用环保等级E0板材打造,规划多个空间格子,方便各种鞋子、包包、靴子、随手物品轻松放置。同时采用的“柏厨收纳”配置了鞋柜精灵具有杀菌消毒的功能!


等,充分利用每一处角落空间!尤其是转角拉篮、吊柜升降拉篮,实现了收纳的灵活拓展,据说仅通过拉篮就实现了
看下图,就这么说吧,整个空间里你看看到能打开的柜面墙体,全部都做了收纳处理,极致的实用!

首先,从入户门开始,看材质品质就不一般,精雕铝装甲门+耶鲁五合一智能门锁,指纹、密码、人脸识别等多重解锁入户体验!中环铂樾售楼处电话:

厨房:博世嵌入式隐藏冰箱;还有一线大品牌AO史密斯燃气热水器,高效节能!国际品牌铂浪高的龙头、水槽,具有世界领先的净铅技术,最大程度的降低了水中的有害物质和重金属残留!
大空间的单水槽设计,方便实用;抽拉式龙头,随心抽拉,精准复位,360度可旋转,清洗水槽无死角!
值得一提的是,厨房窗户还增配了电动开启功能,智能感应装置能够实时感知天气变化!

电动窗户和华为鸿蒙系统连接,通过手机APP即可轻松控制门窗的开关状态,确保家居安全!中环铂樾售楼处电话:
恩仕的智能马桶(只做高端卫浴的瑞士品牌,大多用于顶级酒店与高端豪宅)!


甚至阳台顶部的隐藏式晾衣架都是直接交付,省去了业主钻墙打孔自行安装的烦恼!

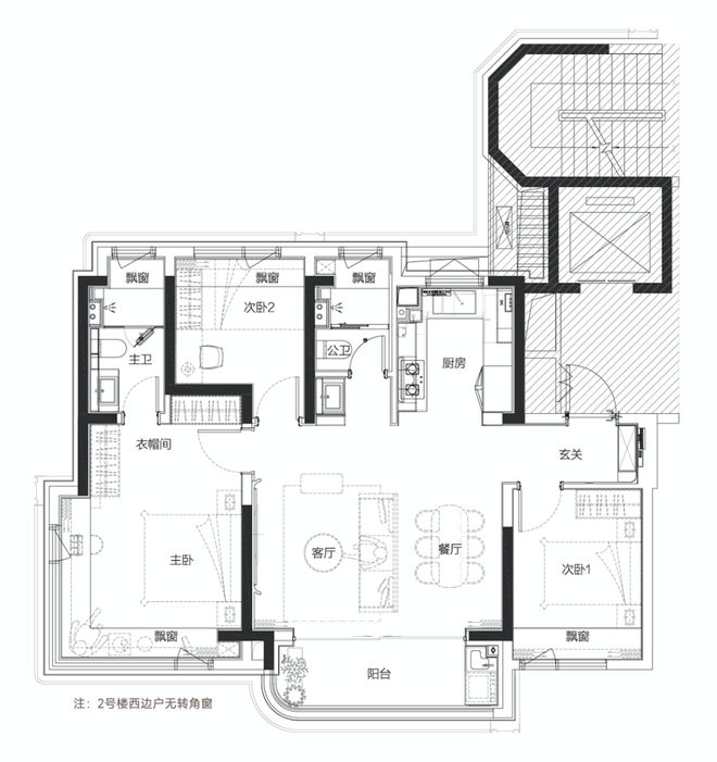
本次首开共推出建面约110-139㎡3房4房,款款皆爆款!建面约110㎡3房2厅2卫:


巨幕“曲面屏”阳台!搭配落地玻璃窗,将室外绿色美景尽收眼底,几乎实现南向阳台“墙体消失术”!
户型图超级大面宽,四开间朝南,约15.05米的IMAX巨幕级南向采光尺度!顶豪大平层的既视感!
值得注意的是,市面上大多数的4房都是2房朝北,但这个户型3个卧室朝南,再加一个大客厅,户型无敌!


中环铂樾客餐厅一体化设计,远超同类面积标准的大尺度餐厅,不仅放得下圆形大餐桌,旁边还配备了餐边柜!剩余空间依然阔绰从容!

中环铂樾位于南大板块正核心,距离南大地铁站仅约200米!1、坐拥两大TOD商业综合体,举步繁华!
项目旁有南大路TOD约32.2万㎡大型地标商业体(步行约500米)、丰翔路TOD华润万象系商业旗舰(步行约800米),形成大型都会级商圈!

目前绿化和栈道已经初具规模,景观湖岸线的修整以及湖体的注水工作也完成,预计2025年12月底竣工!左手繁华,右手绿肺,高端国际生态住区的轮廓即将显现!

此外还有数智绿洲(共四期)、数智中心、科创之门等等高端产业园区和科研中心,其中数智中心、数智绿洲一期已经投入使用,其他项目也在陆续封顶交付,如中车集团、国泰君安、捷瑞肯等等!顶尖的产业科技入驻,同时为整个板块输送顶尖的科技人才,未来的南大将迎来全新蜕变!

上海中环铂樾24小时vip热线☎:(预约快线、什么是房产:房屋产权的简称。
5、什么是房地产开发:是指在依法取得土地使用权的土地上按照使用性质的要求进行基础设施、房屋建筑的活动。

27、期房是如何介定的:房地产开发商拿到商品房预售许可证开始至取得房地产权证大产证或竣工验收合格可以直接入住使用)为止。
上海“器官农场”,培育出世界最大“生物人工心脏”!有血管心房心室等,可活生生跳动
截至3月底,全国社保断缴人数4200万,25到35岁人群断缴率31.7%
2025-08-12 11:02:04
浏览次数:
次
返回列表